Gutenstetter Straße 8
-
Anzahl Hauseingänge:6
-
Anzahl Etagen:7
-
Anzahl Aufzüge:
8
-
Breitbandversorgung / DSL:ja
-
Fensterkonstruktion:Holz, 3-fach Isolierverglasung
-
Außen- / Innenwände:Stahlbeton / Metallständerwände
-
Fassade:Wärmedämm-Verbundsystem
-
Sonnenschutz:Automatische Sonnenschutzanlage
-
Fußbodenaufbau:Hohlraumboden ca. 95% frei verziehbar, Bodentanks
-
Decke:Unterdecke, Mineralfaser-Rasterdecke
-
Vermietbare Gesamtfläche:19.000 m²
-
Freie Mietflächen:
Unser Gebäude am Main Donau Kanal

Neue Mietflächen in der Gutenstetter Straße 8 C+F
Dritter Bauabschnitt schafft weiteren Raum für moderne Büroflächen im Main Donau Park
Mit dem Beginn der ersten Bauarbeiten im April 2019 wuchsen unsere beiden bestehenden Gebäudeabschnitte der Gutenstetter Straße 8 um einen dritten Gebäudeteil. Dieser Bauabschnitt vergrößert den Bürokomplex um weitere 6.300 m2 neuer Büroflächen. Somit stehen in der Gutenstetter Straße 8 nun insgesamt 19.600 m² vermietbare Gesamtfläche zur Verfügung. Die Bauarbeiten am Erweiterungsgebäude waren im Oktober 2020 abgeschlossen. Aktuell sind die ersten Mietausbauten in vollem Gange.
Der richtige Zeitpunkt also, um sich Ihr neues Büro anzusehen. Wir haben noch freie Mietflächen. Sprechen Sie uns gerne vor Ort oder per E-Mail an!
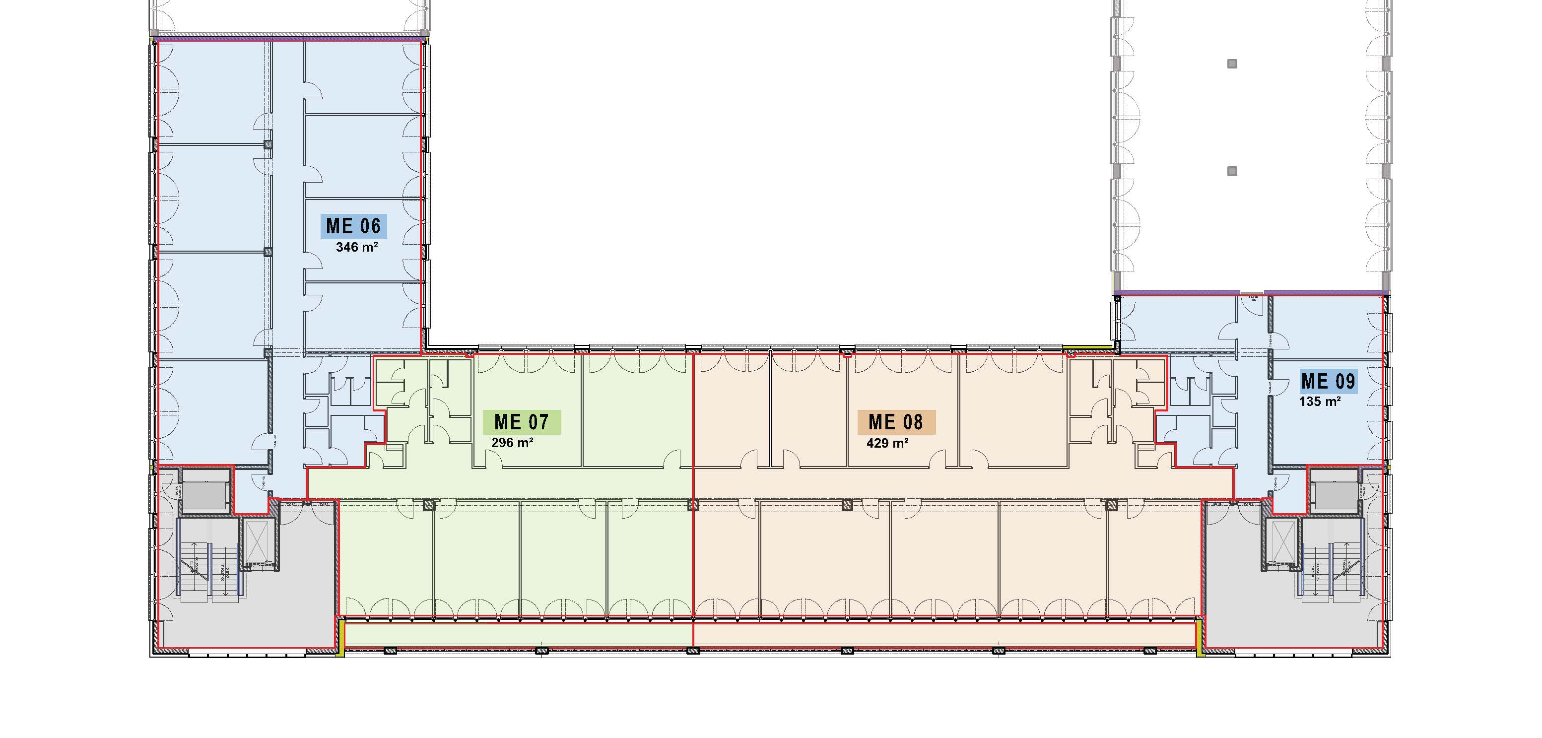
Beispiel - Grundrisse der neuen Mietflächen

Mögliche Aufteilung im Erdgeschoss und 1.Obergeschoss

Mögliche Aufteilung vom 2. Obergeschoss bis zum 5. Obergeschoss

Mögliche Aufteilung im 6.Obergeschoss
Impressionen von unserem Gebäude

Neue Mietflächen in unserem Erweiterungsbau

Gutenstetter Straße 8 Büroflächen

Innenhof mit Grünanlagen

Ansprechende Architektur

Gutenstetter Straße 8E Hauseingang

Gutenstetter Straße 8d Einfahrt mit Kurzzeitparkzone

Erholung in Bürowelten

Repräsentative Fassade Gutenstetter Straße 8C

Ihre Büroräume direkt am Main Donau Kanal

Genuss im Restaurant-Außenbereich

Erweiterungsbau mit neuen Mietflächen

Gutenstetter Straße 8 Innenhof

Gutenstetter Straße 8F Eingang

Gutenstetter Straße 8A - F Bürokomplex

Gutenstetter Straße 8C Eingang


